Do you have a property to sell? Contact Us

Multi-use Commercial Units, Fawsley Estate

Price On Application
Tenure Leasehold
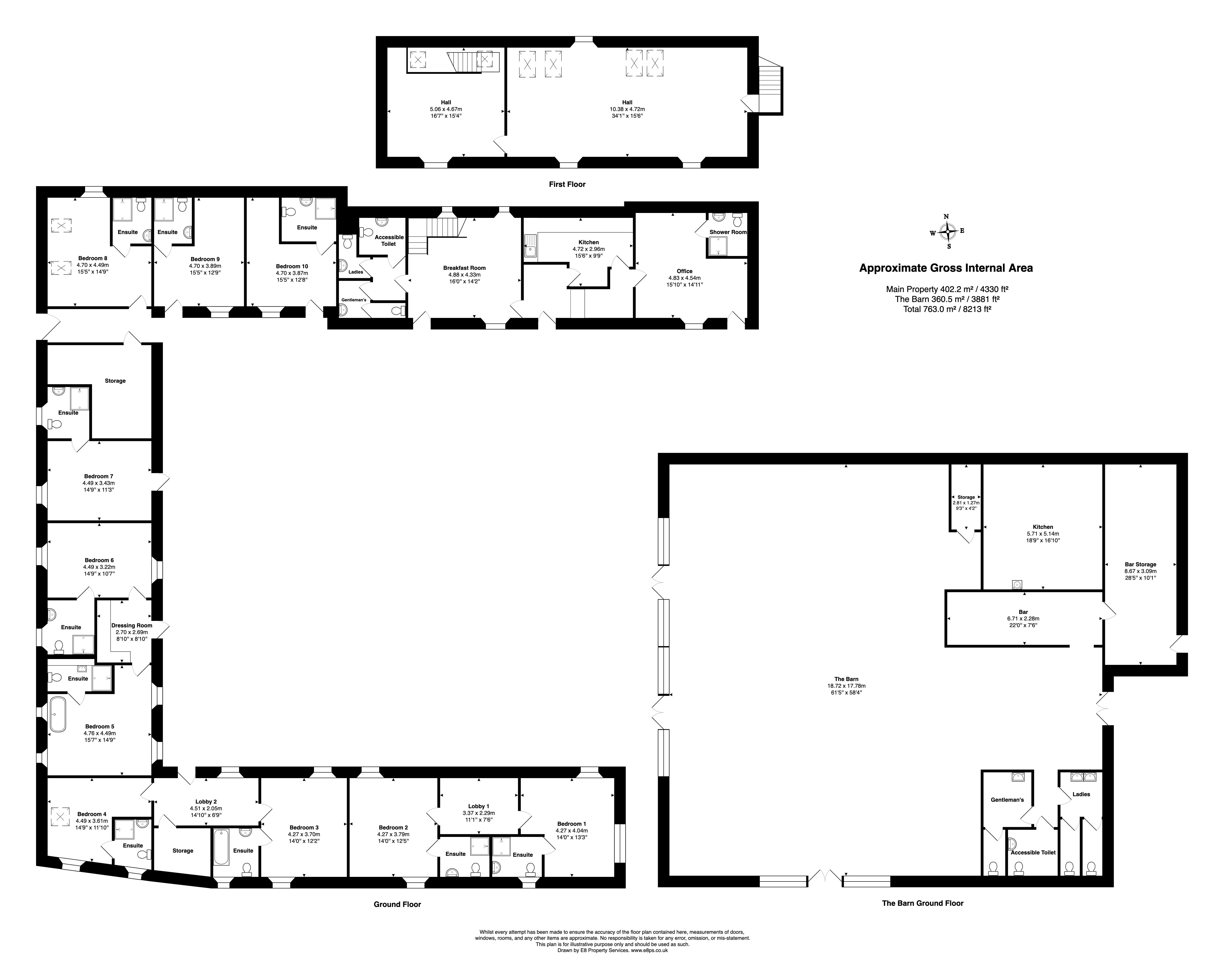
Size 8,213 sq ft

Multi-use commercial premises, on a private estate, suitable for a variety of uses (subject to planning)

  • Overview

    The property is located five miles south of Daventry and 13 miles north of Banbury and comprises a former agricultural barn which has been converted to an events space, and a courtyard of converted traditional buildings comprising accommodation, events space, commercial kitchen and office facilities.

    The current use class for the Steel Portal Framed Building is Sui Generis: Wedding & Event venue, whilst the traditional buildings are under Use Class C1: Hotel & Guest Accommodation.

    The property may be suitable for alternative uses (subject to planning).

    Proposals are invited for the space and rent would be determined depending on the proposed use.
  • Property specification

    • Rural setting on a private estate
    • Suitable for a variety of uses (subject to planning)
    • Proposals invited on flexible lease terms
    • Previously operated as a wedding venue

Arrange a viewing for this property

Get in touch

Arrange a viewing for this property Close icon

Thank you, one of our agents will be in touch to arrange a viewing for this property.

Preferred time to view
Preferred days to view

What size of space do you require?

An error has occurred while getting captcha image

T&C's

By submitting your information, your details will be added to our property marketing database. You can amend this at any time by visiting our Preference Centre.

07386 968951
james.tanulak@bidwells.co.uk

Location

The property is located on a private estate five miles south of Daventry and 13 miles north of Banbury

Train Stations:

  • Charwelton

    1.94km

  • Long Buckby

    12.20km

  • Rainsbrook Valley Railway, Onley Lane, CV22 5QD, United Kingdom

    16.65km

  • Banbury

    17.94km

Property Advisors

Image of James Tanulak

James Tanulak

Graduate Rural Surveyor

501303

Ruth Bonner

Agency Administrator

Ruth is an agency administrator in our rural department.

Read more

Search Bidwells

Arrange a viewing for this property

Thank you, one of our agents will be in touch to arrange a viewing for this property.

Preferred time to view
Preferred days to view

What size of space do you require?

An error has occurred while getting captcha image

T&C's

By submitting your information, your details will be added to our property marketing database. You can amend this at any time by visiting our Preference Centre.

Close icon