Do you have a property to sell? Contact Us

Lavenham Road, Little Waldingfield, Sudbury, CO10 0TQ

Guide Price £295,000
Tenure Freehold
4 Bedrooms

An opportunity to purchase a barn with planning consent for conversion to a four bedroom dwelling, located in an attractive area of Suffolk countryside.

  • Description

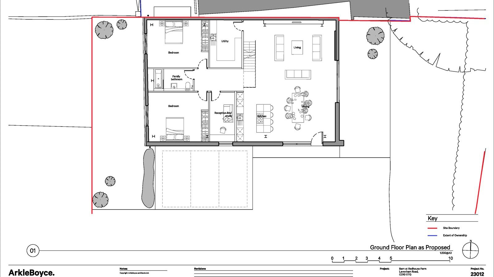
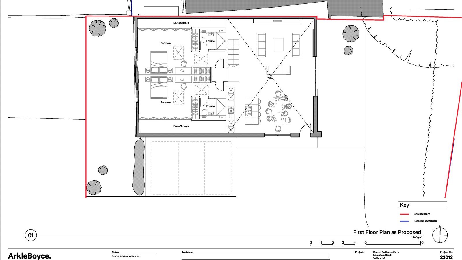
    An opportunity to purchase a barn with planning consent for conversion to a four bedroom dwelling, located in an attractive area of Suffolk countryside. The property comprises an agricultural building and associated curtilage. The existing building is of red brick elevations and constructed of a brick trussed wooden frame under corrugated fibre cement roof. The consented scheme is for the conversion of the existing building to a detached residential dwelling comprising four bedrooms (two downstairs and two upstairs with en suite bathrooms), a large kitchen, dining and living space with vaulted ceilings, a utility room and a reception room/study The building extends to 2,700 sq ft (251 sqm) and the site area is 0.17 acre (0.017 hectare)

Take a look around

The Barn, Little Waldingfield

Arrange a viewing for this property

Get in touch

Arrange a viewing for this property Close icon

Thank you, one of our agents will be in touch to arrange a viewing for this property.

Preferred time to view
Preferred days to view
An error has occurred while getting captcha image

T&C's

By submitting your information, your details will be added to our property marketing database. You can amend this at any time by visiting our Preference Centre.

07971 588127
rebecca.westerhuis@bidwells.co.uk

Location

Train Stations:

  • Sudbury

    5.95km

  • Sudbury

    6.00km

  • Bures

    11.98km

  • Colchester

    17.07km

Property Advisor

Image of E_240816_N29

Becky Westerhuis

Associate, Rural

Becky is enthusiastic about selling properties and loves interacting with people every day.

Read more

Search Bidwells

Arrange a viewing for this property

Thank you, one of our agents will be in touch to arrange a viewing for this property.

Preferred time to view
Preferred days to view
An error has occurred while getting captcha image

T&C's

By submitting your information, your details will be added to our property marketing database. You can amend this at any time by visiting our Preference Centre.

Close icon