Do you have a property to sell? Contact Us

Dullingham Road, Newmarket, Suffolk, CB8 9JW

Guide Price £1,170,000
Tenure Freehold
2 Bedrooms

An opportunity to purchase an equestrian property in close proximity to Newmarket

Please note a deadline for offers has been set for this property for 12 noon, Friday 7 March 2025.

  • Overview

    Longview Stud offers a rare and exciting opportunity to purchase an equestrian property in close proximity to Newmarket town centre and training facilities. The property has most recently been used for breeding bloodstock for racing on the flat.

    Longview Stud comprises two residential properties, 20 loose boxes and two paddocks. In all the property extends to approximately 3.04 acres.

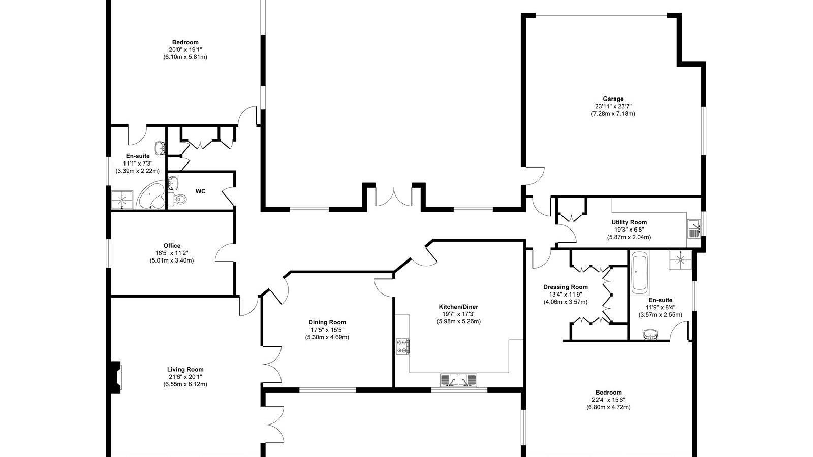
    Longview House: a detached bungalow extending to 3,499 sq ft of floor space. Longview House is in need of modernisation and offers an opportunity for redevelopment or extension. EPC rating C

    The Lodge: a detached barn-style, three bedroom property. EPC rating C

    Both Longview House and The Lodge were granted planning consent subject to equestrian (stud/training yard) occupancy conditions.

    Equestrian facilities: the yard includes 20 boxes comprising three timber stable blocks each with six loose boxes, a brick building with two large boxes, a six bay Claydon horse walker, loading ramp, muck store and a storage barn.

    The land extends to 1.82 acres (0.74 ha) and is divided into two paddocks. The vendor has a grazing agreement on an additional 7.05 acres and it may be possible to assign this to an incoming purchaser.

Arrange a viewing for this property

Get in touch

Arrange a viewing for this property Close icon

Thank you, one of our agents will be in touch to arrange a viewing for this property.

Preferred time to view
Preferred days to view
An error has occurred while getting captcha image

T&C's

By submitting your information, your details will be added to our property marketing database. You can amend this at any time by visiting our Preference Centre.

07971 588127
rebecca.westerhuis@bidwells.co.uk

Location

Train Stations:

  • Newmarket

    0.55km

  • Newmarket

    0.59km

  • Dullingham

    4.71km

  • Kennett

    7.58km

Property Advisor

Image of E_240816_N29

Becky Westerhuis

Associate, Rural

Becky is enthusiastic about selling properties and loves interacting with people every day.

Read more

Search Bidwells

Arrange a viewing for this property

Thank you, one of our agents will be in touch to arrange a viewing for this property.

Preferred time to view
Preferred days to view
An error has occurred while getting captcha image

T&C's

By submitting your information, your details will be added to our property marketing database. You can amend this at any time by visiting our Preference Centre.

Close icon