Do you have a property to sell? Contact Us

Upwell Road, March, Cambridgeshire, PE15 0DE

Guide Price £700,000

An excellent opportunity to acquire a residential development site benefiting from full planning permission for seven dwellings with the option (subject to planning) for a further two dwellings on the current site.

  • Property specification

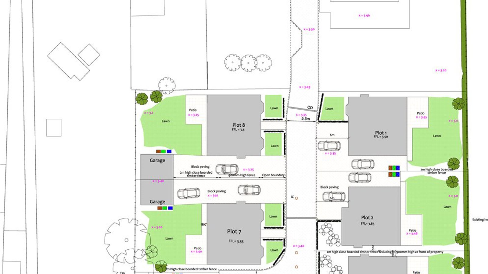
    • Full planning permission was granted under reference F/YR22/0418/RM for 7 x 2 storey dwellings being 4 bed dwellings with garages. Decision date 29/7/25
    • Outline planning permission was granted under reference F/YR19/0931/0 on the 07/02/2020 for 9 dwellings.
    • The Site extends to approximately 1.2 acres
    • For Sale by Informal Tender
    • We have been advised that Electricity, Gas and Water is present on Plots 1,2,3,4,5,7, and 8
    • Further details available on request
  • Description

    An excellent opportunity to acquire a residential development site benefiting from full planning permission for seven dwellings with the option (subject to planning) for a further two dwellings on the current site. Set on the edge of March, this attractive 1.2-acre site offers a delightful rural setting with open views across neighbouring farmland. Full planning permission was granted under reference F/YR22/0418/RM for 7 x 2 storey dwellings being 4 bed dwellings with garages. Decision date 29/7/25 Outline planning permission was granted under reference F/YR19/0931/0 on the 07/02/2020 for 9 dwellings, further highlighting the site’s potential. Location The site is located in March, a well-established Fenland market town with a strong local centre and a population of around 22,000. The town centre provides a wide range of national and independent retailers, cafés and restaurants, focused along Broad Street, and is supported by a weekly market held adjacent to the River Nene. March benefits from a good provision of public open space and is particularly well known for its riverside setting. The Old River Nene runs through the town centre, providing attractive walking routes, moorings and recreational boating, and contributing to the town’s overall amenity and appeal. Planning Agreements The proposed development represents a small-scale development and as such there is no requirement for affordable housing provision. Ecology Under application number F/YR21/3087/COND confirms the Ecology report submitted in June 2021 discharged condition 5. Interested parties should satisfy themselves on all planning related matters. Tenure The freehold of the site is offered for sale with vacant possession on completion. Services Interested Parties must satisfy themselves as to the availability and adequacy of all services prior to making their unconditional offer. We have been advised that Electricity, Gas and Water is present on Plots 1,2,3,4,5,7, and 8 but interested parties are required to satisfy themselves on this point. Wayleaves, easements, covenants The site is sold subject to all wayleaves, easements, covenants and rights of way, whether or not disclosed. Road names and postcodes have been agreed with Fenland Council. Method of Sale The freehold of the Site is offered for sale by Informal Tender. VAT We understand that the seller has not elected to opt the Property to tax, therefore VAT will not be charged in addition to the purchase price. Viewing Viewing is strictly by appointment. Interested parties must be accompanied on site at all times, as organised by prior appointment. Parties should take due care for their own personal safety when inspecting the site. All documents detailed on the decision notice are available through Fenland District Council website under the detailed application references. Note There are several tons of crushed rubble and circa 38,000 bricks on site which are available direct with the owner under separate negotiation.

Arrange a viewing for this property

Get in touch

Arrange a viewing for this property Close icon

Thank you, one of our agents will be in touch to arrange a viewing for this property.

Preferred time to view
Preferred days to view
An error has occurred while getting captcha image

T&C's

By submitting your information, your details will be added to our property marketing database. You can amend this at any time by visiting our Preference Centre.

07747 244672
frances.mcdermott@bidwells.co.uk

Location

Train Stations:

  • March

    2.09km

  • Manea

    7.02km

  • Whittlesey

    15.32km

  • Whittlesey

    15.40km

Property Advisor

602327

Frances McDermott

Partner, New Homes

With exceptional Cambridgeshire market knowledge, Frances is a trusted advisor to housebuilders on the full spectrum of the development to sales process.

Read more

Search Bidwells

Arrange a viewing for this property

Thank you, one of our agents will be in touch to arrange a viewing for this property.

Preferred time to view
Preferred days to view
An error has occurred while getting captcha image

T&C's

By submitting your information, your details will be added to our property marketing database. You can amend this at any time by visiting our Preference Centre.

Close icon