Do you have a property to sell? Contact Us

Leylands, Highfields Road, Highfields Caldecote, CB23 7NX

Price £245,000

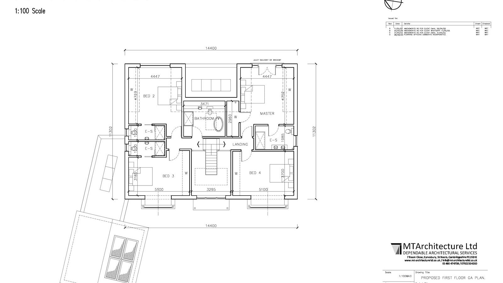
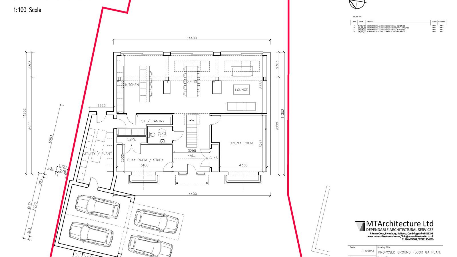
An attractive building plot with full planning permission for a 3000sqft (280sqm) home, offering a superb opportunity to construct your own home, tailoring the internal finishes to your own tastes and needs.

  • Property specification

    • Highfields Caldecote is a well-served village, situated just 8 miles West of Cambridge. It is in the catchment area for the highly acclaimed Comberton Village College.
    • The plot has full planning permission 22/04283/FUL, for a 3000sqft (280 sqm) modern styled home, complete with a double garage.
    • The proposed home design uses high-quality materials that complement the surrounding area.
    • Resale values and estimated build costs available
    • Offering 0.18 of an acre.
  • Description

    Positioned in a popular West Cambridgeshire village is a rare development opportunity, offered for sale with the benefit of full planning permission for the construction of a detached home. The site is located within the jurisdiction of South Cambridgeshire District Council. Full planning permission was granted under application reference number 22/04283/FUL, for the ‘erection of a detached dwelling’. Tenure The freehold of the site is offered for sale with vacant possession on completion. Services Interested parties must satisfy themselves as to the availability and adequacy of all services prior to making their unconditional offer. Wayleaves, easements, covenants The site is sold subject to all wayleaves, easements, covenants and rights of way, whether or not disclosed. Method of Sale The freehold of the Site is offered for sale by Informal Tender on an unconditional basis VAT We understand that the seller has not elected to opt the Property to tax, therefore VAT will not be charged in addition to the purchase price. Highfields Caldecote is a well-served village, situated just 8 miles West of Cambridge. It is in the catchment area for the highly acclaimed Comberton Village College (served by a school bus) which also has a sports hall, sixth form centre and offers adult education classes.

Arrange a viewing for this property

Get in touch

Arrange a viewing for this property Close icon

Thank you, one of our agents will be in touch to arrange a viewing for this property.

Preferred time to view
Preferred days to view
An error has occurred while getting captcha image

T&C's

By submitting your information, your details will be added to our property marketing database. You can amend this at any time by visiting our Preference Centre.

07747 244672
frances.mcdermott@bidwells.co.uk

Location

Train Stations:

  • Cambridge (Cambridge station)

    10.81km

  • Cambridge (Cambridge Railway Station)

    10.82km

  • Cambridge (Cambridge Train Station)

    11.53km

  • Shepreth

    11.88km

Property Advisor

602327

Frances McDermott

Partner, New Homes

With exceptional Cambridgeshire market knowledge, Frances is a trusted advisor to housebuilders on the full spectrum of the development to sales process.

Read more

Search Bidwells

Arrange a viewing for this property

Thank you, one of our agents will be in touch to arrange a viewing for this property.

Preferred time to view
Preferred days to view
An error has occurred while getting captcha image

T&C's

By submitting your information, your details will be added to our property marketing database. You can amend this at any time by visiting our Preference Centre.

Close icon