Do you have a property to sell? Contact Us

High Street, Little Eversden, Cambridge, CB23 1HE

Offers over £200,000
Tenure Freehold
1 Bedroom

A superb single building plot with detailed planning consent for the erection of a single dwelling, situated in this popular South Cambridge village.

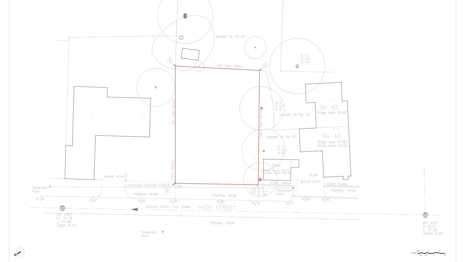
A superb single building plot with planning sitting adjacent to 40 and 42 High Street with consent for a 2 storey house with a GIA of 138 sq m (1,485 sq ft).

  • Overview

    The site plan and floor plans are detailed below and further information is available under planning reference 24/02957/FUL.

    Location

    Little Eversden is a small, attractive village conveniently situated about 7 miles south west of Cambridge. There is a recreation ground with play area for young children within close proximity, an Italian restaurant within about half a mile and an Indian restaurant and village hall in the neighbouring village of Great Eversden.

    Primary school education is available in the nearby village of Comberton (about 3.5 miles) together with secondary school and sixth form education at the highly acclaimed Comberton Village College.

    The University City of Cambridge offers a wide range of shopping, schooling and cultural amenities and is easily accessible via the A603.

    For the commuter, the nearby M11 (junction 12) provides access to Stansted Airport and London to the south and also links with the A14, providing access to the A1/M to the north. There is a mainline railway station at Royston (about 9 miles), which provides a fast train service to London's King's Cross in about 38 minutes.

    Tenure

    The freehold of the site is offered for sale with vacant possession on completion.

    Services

    Interested Parties must satisfy themselves as to the availability and adequacy of all services prior to making their unconditional offer.

    Wayleaves, easements, covenants

    The site is sold subject to all wayleaves, easements, covenants and rights of way, whether or not disclosed.

    Method of Sale

    The freehold of the Site is offered for sale by Informal Tender on an unconditional basis

    VAT

    We understand that the seller has not elected to opt the Property to tax, therefore VAT will not be charged in addition to the purchase price.

    New Homes

    Bidwells has evidence of new home sales in the locality. For specific queries with regards to resale values, please contact the Bidwells New Homes team

    Images shown are of the site and computer images of the proposed new build home.

  • Property specification

    • Single building plot with detailed planning consent
    • Sitting on the High Street in this popular village
    • Consent granted for the construction oof a 1485 sq ft two storey house
    • Further details available by request

Arrange a viewing for this property

Get in touch

Arrange a viewing for this property Close icon

Thank you, one of our agents will be in touch to arrange a viewing for this property.

Preferred time to view
Preferred days to view
An error has occurred while getting captcha image

T&C's

By submitting your information, your details will be added to our property marketing database. You can amend this at any time by visiting our Preference Centre.

07919 211832
Rebecca.Wilson@bidwells.co.uk

Location

Train Stations:

  • Shepreth

    5.53km

  • Foxton

    5.82km

  • Meldreth

    7.91km

  • Cambridge (Cambridge Train Station)

    8.97km

Property Advisor

501266

Rebecca Wilson

Partner, Head of Residential New Homes, Cambridge

Having begun her Bidwells journey in planning and residential development, Rebecca has a rich foundation for transforming development visions into reality.

Read more

Search Bidwells

Arrange a viewing for this property

Thank you, one of our agents will be in touch to arrange a viewing for this property.

Preferred time to view
Preferred days to view
An error has occurred while getting captcha image

T&C's

By submitting your information, your details will be added to our property marketing database. You can amend this at any time by visiting our Preference Centre.

Close icon